真空断路器内部结构图及编号说明
来源:电工天下时间:2021-12-03 05:30:25 作者:老电工手机版>>
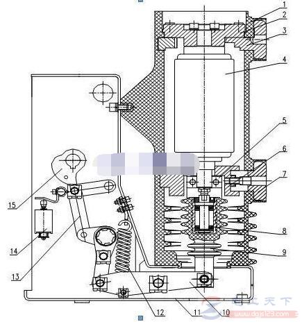
在下图中序号对应真空断路器结构图的编号,共有15项。
1.绝缘筒
2. 上支架
3. 上出线座
4. 真空灭弧室
5. 软连接
6.下支架
7.下出线座
8.碟簧
9. 绝缘拉杆
10. 四连杆机构
11. 断路器壳体
12. 分闸弹簧
13. 四连杆机构
14. 分闸电磁铁
15. 合闸凸轮

下图为其他类型的结构图:

相关文章真空断路器弹簧操作机构合闸储能回路的故障问题

有关真空断路器的故障问题,在真空断路器的使用过程中,出现了弹簧操作机构合闸储能回路中的故障问题,一般是什么原因引起的,故障危害有哪些,处理方法与预防措施有哪些,一起来看下。
时间:2022-01-24 05:18:51
真空断路器分闸失灵的故障问题

有关真空断路器的知识,真空断路器在使用时出现分闸失灵的现象,这是什么原因引起的,以下分析了真空断路器分闸失灵的原因,并给出了相关处理方法和预防措施,供大家参考。
时间:2022-01-24 05:15:48
真空断路器真空泡真空度降低的故障问题

有关真空断路器的知识,当出现真空泡真空度降低的问题时,应该从哪些方面来查找原因,以及真空断路器真空泡真空度降低的处理方法有哪些,下面来看下。
时间:2022-01-24 05:12:48
真空断路器图片及电气符号

真空断路器图片及电气符号,如下图所示,一次系统元件:真空断路器。功能:用于控制和保护高压电气设备,下面具体来看下。
时间:2022-01-16 05:16:28
户外高压真空断路器的五大技术参数

户外高压真空断路器的五大技术参数,主要包括断路器的额定电压、最高工作电压、额定电流、额定断路电流及合闸时间、分闸时间,供大家学习参考。
时间:2022-01-04 06:21:59
真空断路器跳闸失灵的处理方法

在真空断路器运行过程中,可能会出现跳闸失灵的的问题,分为三种情况:一是运行中红色指示灯不亮,二是光字牌发出“控制回路断线’信号,三是光字牌发出“电压回路断线”信号。
时间:2021-12-03 05:38:05
真空断路器拒跳时的操作项目

真空断路器拒跳时的操作项目,当真空断路器发生拒跳时,可以进行如下操作项目:1、将拒跳真空断路器经倒闸操作倒至单独的一段母线上,与母联断路器串联运行,即用母联断路器的保护代替拒跳断路器的保护。
时间:2021-12-03 05:32:38
真空断路器的灭弧原理及真空灭弧室的作用

真空断路器的灭弧原理有真空灭弧室的作用,真空断路器是利用真空良好的绝缘性能和耐弧性能等特点,将断路器触头部分安装在真空的外壳内而制成的断路器,真空灭弧室是真空断路器的灭弧和绝缘部件。
时间:2021-09-30 09:19:50
- 上一篇:一文看懂三相断路器怎么接线,附完整接线图
- 下一篇:真空断路器拒跳时的操作项目





